Creating Your Home

Considered, early-stage architectural planning for people who know they want a better home, but aren’t sure where to start.

Rather than expecting a finished brief or a fully formed idea, Creating Your Home starts by making sense of what you already have: ideas, questions, constraints and possibilities.

It’s for people who:

  • Own a home in NSW or Victoria

  • Want to make considered decisions before locking in a builder or committing to construction

  • Value good design, but also want practicality and realism

  • Don’t want to rush into drawings without understanding the bigger picture

This process focuses on getting the fundamentals right - layout, light, priorities, and long-term suitability - before the expensive decisions begin.

From there, we provide the guidance and support you need to move confidently into later stages of your new home or renovation, without second guessing.

Two ways to get started

Clarity Consultation
A$1,200.00

A focused first step

A short, strategic session to help you understand your home and your options before committing to a larger design process.

What You Get

  • 90-minute architect-led consultation (online or in person)

  • Review of your home, site and constraints

  • Discussion about how you live now and how you want to live

  • High-level advice on:

    • Layout potential

    • Sunlight and orientation

    • Privacy

    • Key priorities

  • Honest guidance on what’s worth doing (and what probably isn’t)

  • Written summary with practical next steps

What You Don’t Get (Yet)

  • Detailed layout testing

  • Scaled architectural plans

  • A fully resolved design direction

Best For

  • People early in the process

  • Owners feeling stuck or overwhelmed

  • Anyone wanting clarity before committing to a larger design engagement

Available in NSW and Victoria.

Should you decide to move forward with The Big Picture, your Clarity Consultation investment will be fully credited toward the next stage.

The Big Picture
A$8,500.00

A complete architectural masterplan

A structured design process that explores options properly and develops a clear, buildable direction before you move into approvals and construction.

What You Get

  • Everything in The Clarity Consultation, plus:

  • In-depth briefing workshop to truly understand your needs

  • Detailed site analysis (sunlight, neighbours, access, constraints) to understand the opportunities and constraints

  • Layout testing and design exploration

  • One preferred design option developed in detail

  • Scaled plans suitable for budgeting and builder conversations

  • Advice on staging and aligning design with budget

  • Clear pathway to detailed design and construction

What You Walk Away With

  • Confidence in your direction

  • A resolved spatial strategy

  • Fewer unknowns and fewer regrets

  • Better conversations with builders and consultants

  • A defined next step toward construction

Best Suited To

  • Owners ready to properly explore their home’s potential

  • Renovations or additions where layout decisions really matter

  • People who don’t want to rush into documentation without clarity

  • Homes with site constraints (sunlight, neighbours, access) that need careful thinking

  • Anyone wanting confidence before committing serious construction money

Available in NSW and Victoria

The Big Picture projects are engaged via proposal and agreement. Payment is staged, not required upfront.

Fixed fees, with honesty built in

Our fees are fixed so you can make decisions with confidence.

Homes with unusual complexity, such as significant heritage constraints, extreme site conditions, or a high level of bespoke detailing, may fall outside the scope above. If that’s the case, we’ll tell you upfront.

If we’re not the right fit, we’ll say so.
That clarity works both ways.

Where we currently work

Creating Your Home is currently offered for homes located in New South Wales and Victoria.

This ensures appropriate professional coverage and allows us to give advice grounded in local planning, construction, and regulatory conditions. If your home is in another state, you’re welcome to get in touch and we’ll let you know if and when this service expands.

Which option is right for you?

Either way, you’ll receive thoughtful, architect-led advice designed to help you move forward with confidence.

What happens after Creating Your Home?

For many clients, Creating Your Home becomes the foundation for the next stages of their project.

Once the masterplan is complete and you’re confident in the direction, we can continue to support you through:

  • From concept to detailed design
    Developing the plan into a fully resolved architectural design.

  • Planning and approvals
    Navigating local planning controls where required and managing the approvals process.

  • Construction documentation
    Preparing clear, coordinated drawings and information for pricing and construction.

  • Support during construction
    Providing ongoing architectural input and contract administration to help keep the project aligned with the original intent.

There’s no obligation to continue beyond the Creating Your Home. Some clients use it to inform discussions with builders or other consultants; others enjoy our support and guidance through the full process.

Either approach is completely fine.

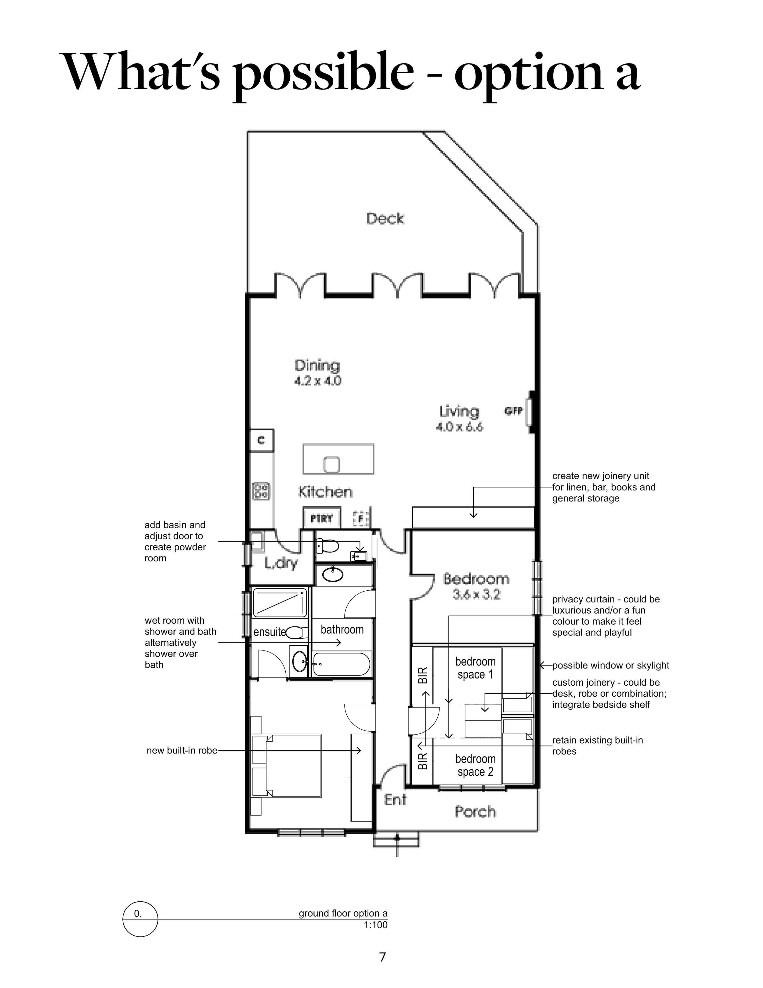
Past Project

Tired Edwardian cottage transformed into a light-filled and functional home under the existing roofline

Early architectural planning that unlocked light, improved flow and future-proofed the home, all within the existing structure. A reminder that you don’t always need more space, just a clearer plan.

  • From the very first consultation, I felt like you really listened to what I wanted and made those ideas work - then made them better.

    Sue, Moama NSW

  • I had spoken to another designer, but what they were suggesting felt too radical and didn’t align with what I wanted to keep. Talking to you felt completely different.

    Sue, Moama NSW

  • From a planning perspective, I was stuck. I couldn’t see how we could fit everything in. The clarity [that Creating Your Home gave me] was exactly what I needed.

    Sue, Moama NSW

  • I just love my bedroom - the entry, the storage, the proportions. As soon as the front door moved and I walked into the bedroom, I could feel how good the space was going to be.

    Sue, Moama NSW

  • I found it a real relief having someone handle the permit side of things. Without that documentation in place, I would have been chasing my tail.

    Sue, Moama NSW

Ready to Create Your Home?

If Creating Your Home sounds right for you, complete the form with a few details about your project. We'll review your message and get back to you within 48 hours.